Proiect dispensar medical uman în mediul rural, cu 3 cabinete de consultație, 2 săli de tratament, 1 cabinet de izolare, farmacie și locuința de serviciu a medicului (2024)
Studio: Archos2002 și Arhipera
Colectiv: arh. Lorin Niculae, arh. Irina Scobiola, stud. arh. Mihaela Oancea, stud. arh. Ana Alecu, stud. arh. Andreea Ralea, stud. arh. Silvia Niculae, stud. arh. Irina Ursea
S teren = 4849.74mp
S construită a clădirii =372.19mp
S construită accese, alei, trotuar de gardă = 550mp
Locuri de parcare 14 (pavele înierbate) = 175mp
S spaţii verzi = 2212.32 mp
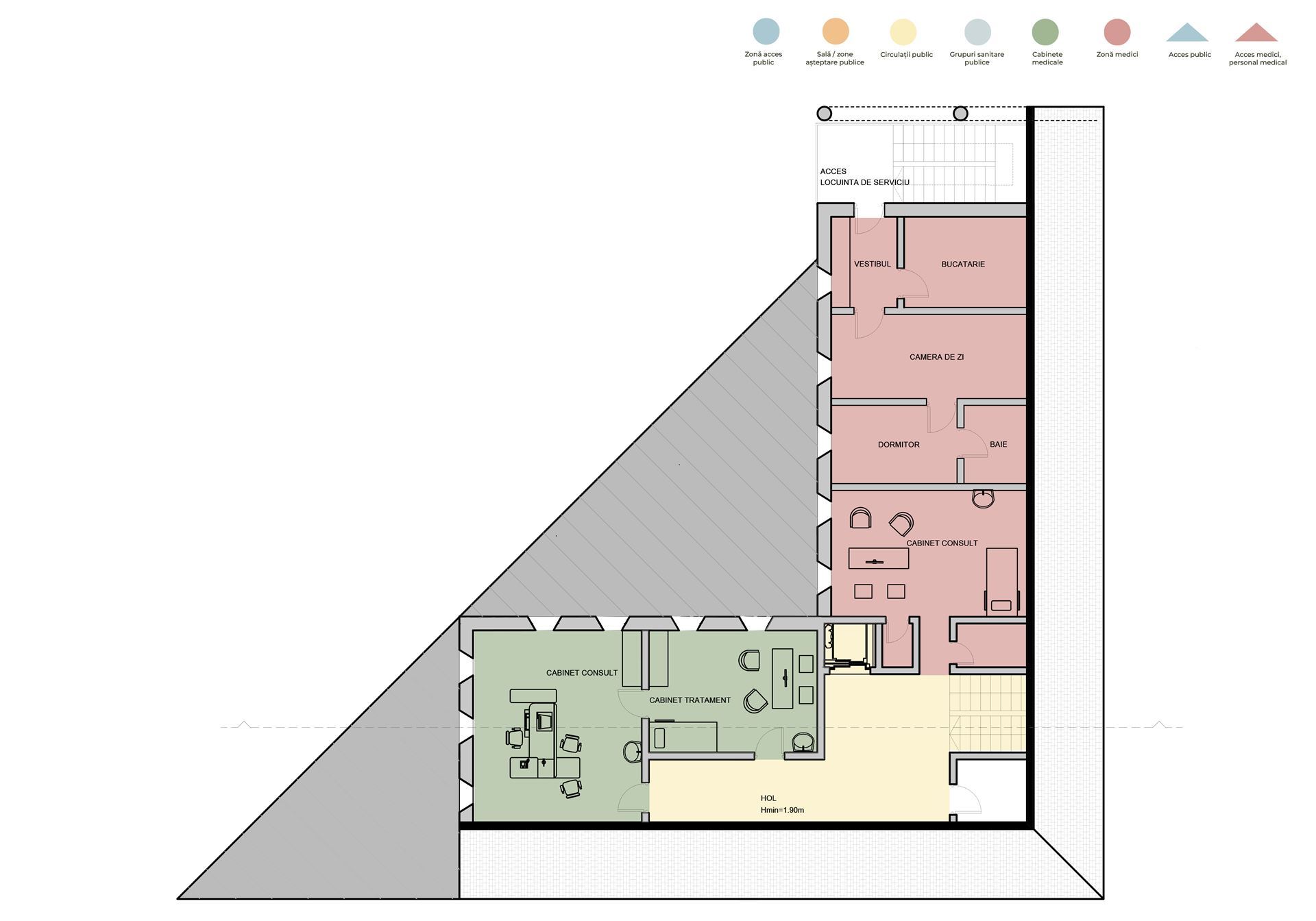
Centrul medical este o ilustrare de temă proiectată de echipa de întocmire a cărții ,,Arhitectura centrelor medicale în mediul rural. Ghid de bune practici’’ (2024), în vederea ilustrării principiilor enunțate. Clădirea, având tipologia de bare articulate, se dezvoltă pe două niveluri, conectate prin scară și ascensor. La intersecția celor două bare se află recepția și sala de așteptare. La parter sunt găzduite o farmacie, cabinete de consultații și săli de tratament, iar la etaj se află un cabinet, un spațiu multifuncțional, precum și locuința medicului care beneficiază și de un acces direct din exterior.
Accesul vizitatorilor se face la nivel, prin ridicarea ușoară a cotei terenului sistematizat în proximitatea clădirii. Este bine marcat și asigură protecția față de intemperii.
Spațiul dominant este sala de așteptare care conectează cele două niveluri ale clădirii. Designul biofil al acestui spațiu realizează distragerea pozitivă a pacienților. La exterior se află o grădină terapeutică în relație directă cu sala de așteptare. Cabinetele de consultații și sălile de tratament dispun de terase ample, cu perspective exterioare protejate.
Proiect care a apărut în cartea ,,Arhitectura centrelor medicale în mediul rural. Ghid de bune practici’’ (2024), capitolul ,,Ilustrări de temă: 4 proiecte’’.
*
AP1.13 “Sate Sănătoase” Apelul de proiecte Nr. 1 “Îmbunătățirea accesului la serviciile de sănătate în special pentru grupurile vulnerabile, inclusiv Romi”, program coordonat de Ministerul Sănătății și derulat în parteneriat cu Primăria Comunei Beica de Jos, apel finanțat în cadrul Programului “Provocări în sănătatea publică la nivel european” – Mecanismul Financiar SEE 2014-2021
















